SOLO-DUO ABODE DRAWING PACKAGE

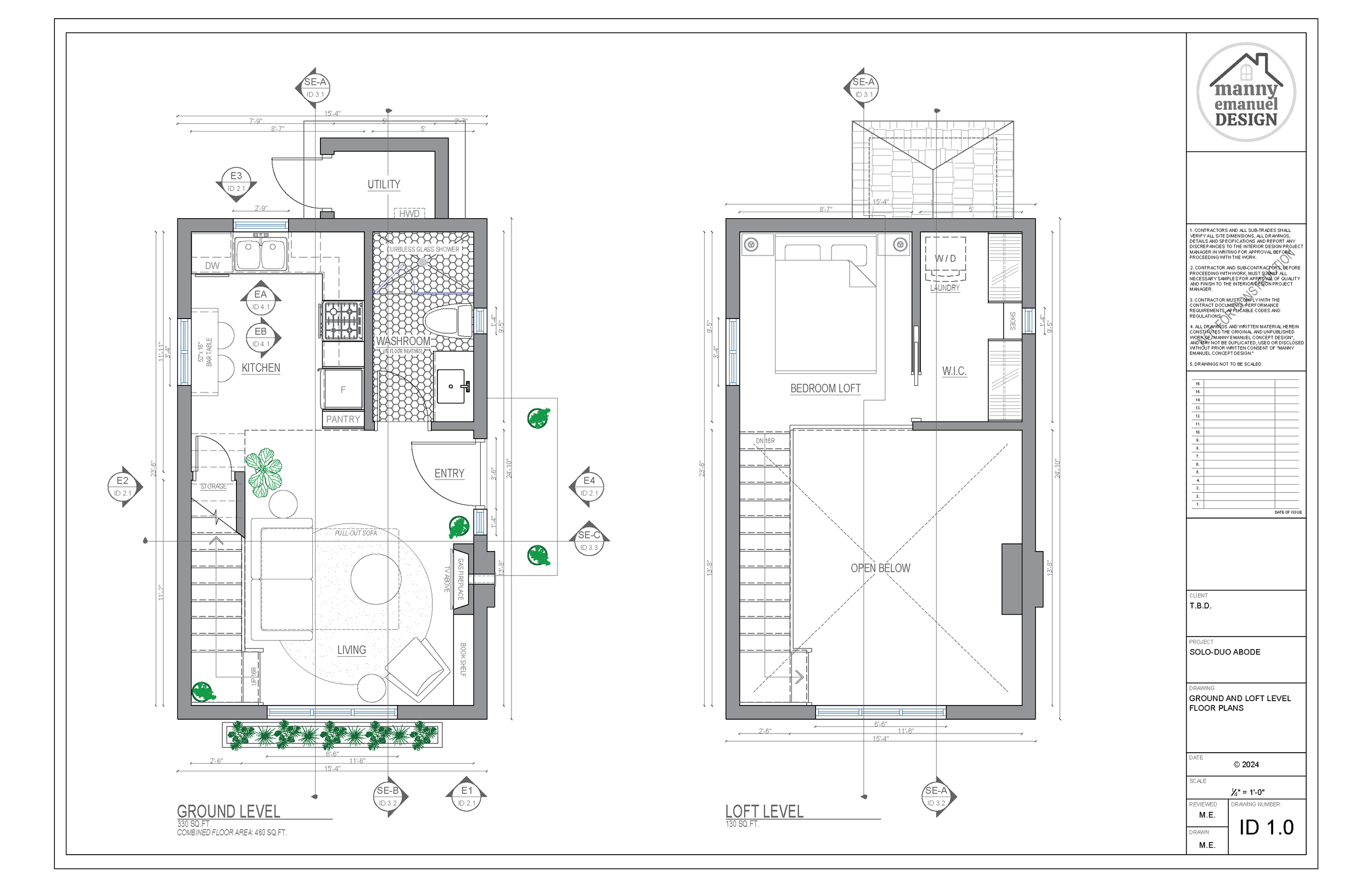
Seeking to live with only bare necessities, the Solo-Duo Abode offers a perfect living environment for a single or a pair of individuals. With a vast optional location in rural, urban, or even remote landscapes, this dwelling features endless possibilities and a unique space for individuals to live sustainably with a minimal environmental footprint. With 460 square feet of living space, this cabin-style home offers a standard-size bathroom, eat-in kitchen, living room and loft bedroom with a walk-in closet with laundry.


BACHELORS OF INTERIOR DESIGN THESIS PROJECT

With this historical structure's overall reconfiguration, the Weegiwahm Haven Homeless Shelter design provides a space to temporarily call home and support this northern homeless population community temporarily. With a specific focus on private versus public areas, the organization offers multiple benefits with its resources and services for temporary shelter of residents while also providing the support necessary for those residents to attain the independence they desire. By incorporating indigenous cultural elements, we can showcase cultural artifacts and references by including architecture in various spaces. With all residents' well-being at its forefront, this shelter demonstrates care for a vast spectrum of citizens who may suffer perpetual or transient homelessness. This drawing set is a proposal representation of how an existing building in an ideal location could transform its current occupancy into a greater purpose.